Le centre des Caillettes se compose de deux bâtiments reliés sans étage.
Le premier, le bâtiment d’origine (Raymmond Coisnon) datant de l’époque où l’OTAN avait installé un relais radio sur la butte des Caillettes, a été rénové en 2006. Il comprend la salle cheminée, la salle à manger ainsi que la cuisine et la lingerie.
La salle cheminée :
La salle cheminée est un espace de détente mais aussi un espace de travail lorsque les groupes sont divisés pour aborder différentes thématiques.
La salle à manger :
La salle à manger est divisée en deux espaces reliés l’un à l’autre pour une capacité maximale de 40 personnes assises.
La cuisine :
La cuisine est un espace réservé au cuisinier du centre, celle-ci est équipée avec tout la matériel nécessaire à la préparation de repas maisons de qualité.
La lingerie :
Espace réservé au personnel du centre, la lingerie est destinée au stockage des produits d’entretien et au nettoyage du linge de chambre et des vêtements des enfants.
___________________________________________________________________________
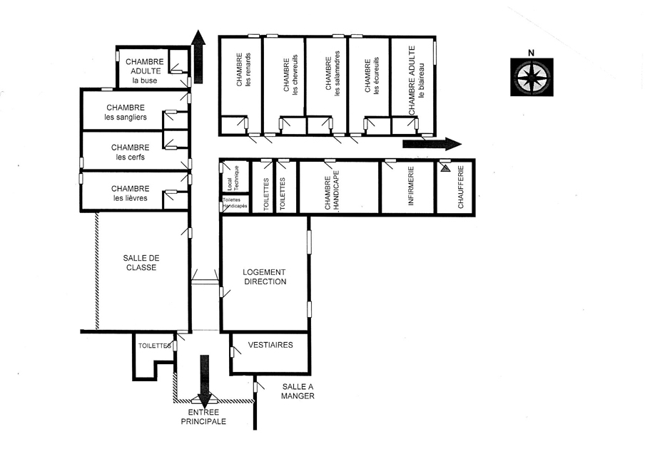
Le second batiment (Étienne Pin), construit en 2006, lors de la rénovation du premier comprend la salle de classe, un vestiaire, les toilettes, 7 chambres de 5 lits pour les enfants, une chambre adaptée aux fauteuils roulants ainsi que le logement de direction et deux chambres individuelles pour l’équipe d’encadrement.
Les chambres enfants :
Chaque chambre est constituée : d’un coin couchage où il y a deux lits superposés et un lit simple, les enfants ont à disposition deux commodes pour ranger leurs vêtements, une armoire pour le linge sale et une armoire pour les affaires de toilette ainsi que d’une salle de bain avec une douche à l’italienne et un lavabo.
Les chambres adultes :
Elles se trouvent en bout de couloir afin qu’il y ait toujours la présence d’un adulte à chaque extrémité.
La salle de classe :
Comprend un coin bibliothèque et jeux de société, un espace salle de travail avec exposition de trésors de la forêt et un coin informatique avec un ordinateur connecté à internet.
Le vestiaire :
Comprend un casier et un porte manteau par enfant.
Les toilettes :
Un premier bloc sanitaire au niveau de l’entrée, un WC adapté aux fauteuils roulants dans le premier couloir et deux blocs sanitaires (garçons et filles) au niveau du couloir des chambres.





















